Wnętrza w naszych domach coraz częściej zaczynają przypominać, te które oglądamy w katalogach wnętrzarskich. Właściciele domów czy mieszkań przykładają wiele uwagi do tego jak je wykończyć. Schody nie są tu wyjątkiem. Przykładem może być jedna z naszych najnowszych realizacji.
Charakterystyka schodów
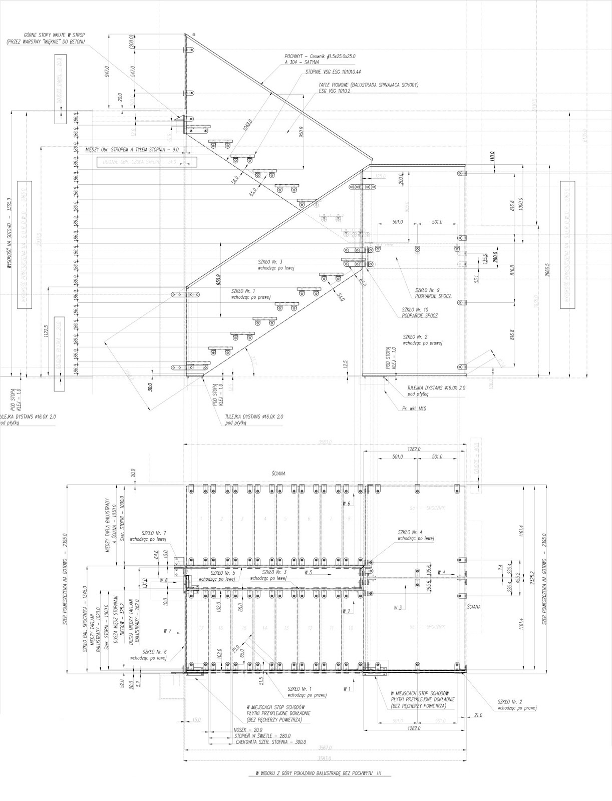
Na elementy konstrukcji całoszklanej składają się nie tylko szklane schody czy balustrady, to także dobrze zaprojektowany szkielet. Schody szklane wykonane w jednym z prywatnych domów we Włocławku to zdecydowanie jeden z najbardziej wyróżniających się projektów. Cała przejrzysta i funkcjonalna struktura schodów oparta została na prostych, ale konsekwentnie stosowanych zasadach proponowanych już przez Leonardo da Vinci. Zamiast konstrukcji stalowej zastosowano konstrukcję szklaną z hartowanego i laminowanego szkła.
Na życzenie klienta nie został zastosowany żaden antypoślizgowy nadruk(w wielu naszych realizacjach jednak klienci decydują się na ten nadruk). W przypadku tych schodów projekt uwzględniał również budowę szklanej balustrady w formie dwóch hartowanych i laminowanych tafli szkła o grubości 10 mm. Widoczna na zdjęciu szklana balustrada jest integralną częścią całej konstrukcji. Została jak wszystkie inne elementy skręcona za pomocą indywidualnie zaprojektowanych łączników ze stali nierdzewnej z plastikowymi elementami chroniącymi szkło. Sam montaż trwał około tygodnia. Kolejno ustawiano spocznik, a następnie bieg górny i dolny, cały czas kontrolując prawidłowość montażu, tak aby wszystkie elementy do siebie pasowały.
Parametry techniczne
wysokość schodów - ok 3m
szerokość stopnia - ok 1m
grubość szkła stopnia - 35mm
głębokość stopnia - ok 27cm
wysokość między stopniami - ok 18cm
odległość między balustradami - ok 1,1m
Czekamy na Wasze pytania i komentarze!
e-mail: tadeusz@tierspol.pl
Tel. 89 741 20 95

Brak komentarzy:
Prześlij komentarz